Microboy Pro

  • wykonanie
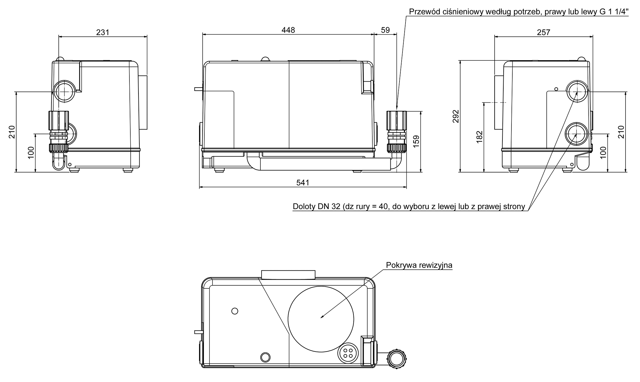
    • 4 dodatkowe boczne dopływy DN 40 do podłączenia umywalki, prysznica lub bidetu
    • odpowietrzenie zbiornika przez filtr z węglem aktywnym
    • wytrzymała i ustawiona na sucho pompa wirowa
    • zintegrowany sygnał alarmu w przypadku usterki
    • możliwość ręcznego awaryjnego opróżnienia w przypadku zaniku zasilania
    • odejście ciśnieniowe 1 ¼“ gwint wewn. zintegrowanym zaworem zwrotnym klapowym - do wyboru lewe lub prawe
    • temperatura medium maks. 40°C - krótkotrwale maks. 90°C
    • stopień ochrony IP 54
    obszary zastosowan
    • rozdrabnia mokre chusteczki i artykuły higieniczne
    • doskonale sprawdza się w publicznych sanitariatach
    • pojedyncza instalacja podnosząca WC do ograniczonego użytku w sektorze prywatnym poniżej poziomu cofki, np. w piwnicach lub w ramach renowacji starego budownictwa.
    zakres dostawy
    • gotowa do podłączenia z 1,5 m kablem przyłączeniowym z wtyczką ze stykiem ochronnym
    • alarm dźwiękowy
  • numer artykulu
    18190
    zasilanie
    230 V
    czestotliwosc
    50 Hz
    wydajnosc P1
    600 W
    wydajnosc P2
    350 W
    prad znamionowy
    2,5 A
    liczba obrotów
    2800 obr/min
    C
    10 µF
    max. temperatura
    40 (krótkotrwale do 90) °C
    max. przeplyw
    7,5 m³/h
    max. wysokosc tloczenia
    11,8 m
    opakowanie (s x w x d)
    300 mm x 300 mm x 490 mm
    wyposazenie
    z pneumatycznym sterowaniem pomp dla pojedynczych pomp
  • charakterystyka - Microboy Pro
  • opakowanie - Microboy Pro
  • 18190_en.pdf#3d_zp_microboy_de.pdf#18190_cz.pdf#18190_pl.pdf#18190_es.pdf#3d_zp_microboy_en.pdf#18190_fr.pdf#Hebeanlagen_ZehnderPumpen_de.pdf#18190_de.pdf#manual_zp_microboy_e3_de.pdf#18190_pt.pdfData sheet#3D PDF (Adobe Acrobat Reader benötigt)#Datový list#karta danych produktu#Ficha técnica#3D PDF (Adobe Acrobat Reader required)#fiche technique#Broschüre Hebeanlagen#Datenblatt#Betriebsanleitung#ficha de dados-----plArray
    (
        [0] => pl-PL.utf8
        [1] => pl_PL.UTF8
        [2] => pl_PL.utf8
        [3] => pl_PL.UTF-8
        [4] => pl_PL.utf-8
        [5] => polish_POLISH.UTF8
        [6] => polish_POLISH.utf8
        [7] => pl.UTF8
        [8] => polish.UTF8
        [9] => polish-pl.UTF8
        [10] => PL.UTF8
        [11] => polish.utf8
        [12] => polish-pl.utf8
        [13] => PL.utf8
        [14] => pl_PL
        [15] => polish_POLISH
        [16] => pl
        [17] => polish
        [18] => polish-pl
        [19] => PL
        [20] => poland
        [21] => Poland
        [22] => pl_PL.ISO8859-2
        [23] => polish_POLISH.ISO8859-2
        [24] => pl.ISO8859-2
        [25] => polish.ISO8859-2polish-pl.ISO8859-2
        [26] => PL.ISO8859-2
        [27] => pl_PL.iso88592
        [28] => polish_POLISH.iso88592
        [29] => pl.iso88592
        [30] => polish.iso88592
        [31] => polish-pl.iso88592
        [32] => PL.iso88592
    )
    
    1. karta danych produktu

Urządzenia zmontowane na gotowo

Za to kochają nas hurtownie hydrauliczne, fachowi sprzedawcy pomp i instalatorzy:

Przy wszystkich pompach Zehnder otrzymujecie w dostawie wszystkie systemy i urządzenia w postaci gotowego pakietu wraz ze wszystkimi akcesoriami. Szybka i łatwa instalacja; Zehnder działa cicho i niezawodnie przez wiele lat. Kalkulacja dobra i terminy dostaw są dotrzymane, klient jest w pełni zadowolony i od razu jest wiernym fanem Zehnder. Czego więcej można chcieć?

Pompy domowe i ogrodowe

Piwnica zalana, staw ogrodowy zaszlamiony, zbiornik na wodę deszczową pełny?

Produkty Zehnder z zakresu dom i ogród takie jak: pompa zatapiana do wody brudnej, pompa głębinowa, pompy ogrodowe  lub urządzenie do wody deszczowej można znaleźć w sklepach specjalistycznych. Porozmawiaj z instalatorem, z hurtownią techniczną lub  dystrybutorami pomp lub skontaktuj się z działem sprzedaży w naszej fabryce pod numerem telefonu +49 (0) 3774 / 52-100.

Zamówienie katalogu

Nasze drukowane katalogi, cenniki i broszury można zamówić bezpłatnie tutaj. To ułatwi przegląd naszego, okazałego programu produkcji.

Proszę zapamiętać, że wszystkie rodzaje materiałów drukowanych są również dostępne w centrum pobierania.
eurologo
Powered by PIMBase - Concept & Design by Plan-Ad GmbH
Impressum, Oświadczenie o ochronie danych
© Zehnder Pumpen GmbH 2018

Na naszej stronie internetowej używamy plików cookie. Niektóre z nich są niezbędne dla funkcjonowania strony, inne pomagają nam w ulepszaniu tej strony i doświadczeń użytkownika (Tracking Cookies). Możesz sam zdecydować, czy chcesz zezwolić na pliki cookie. Należy pamiętać, że w przypadku odrzucenia, nie wszystkie funkcje strony mogą być dostępne.