RWNA CPS 25-5 B

  • Model
    • plug-in compact system for automatic use of rainwater from a cistern
    • automatic water feed from the drinking water network in case of water shortage and acoustic alarm message in case of overflow
    • Collection container made of PE with assembled, multi-stage, low-noise centrifugal pump model CPS
    • Suction height up to 8.5 m
    • Quality motor with thermal overload protection
    • Switching between rain water and drinking water - and vice versa - takes place automatically
    Application
    • Garden irrigation
    • Domestic water supply
    Scope of delivery
    • plug-in system, including float switch with 20 m connection cable (for cistern), 2 pieces of flexible connection hoses
    • 1 piece KG elbow DN 100 - 87° with overflow set Ø 110
  • Article number
    20067
    Power supply
    3~400 V
    Frequency
    50 Hz
    Power P1
    2.000 W
    Power P2
    1.500 W
    Nominal current
    3,8 A
    Drive
    2850 rpm
    Max. temperature
    40 °C
    Max. flow rate
    9,0 m³/h
    Head up to
    62,0 m
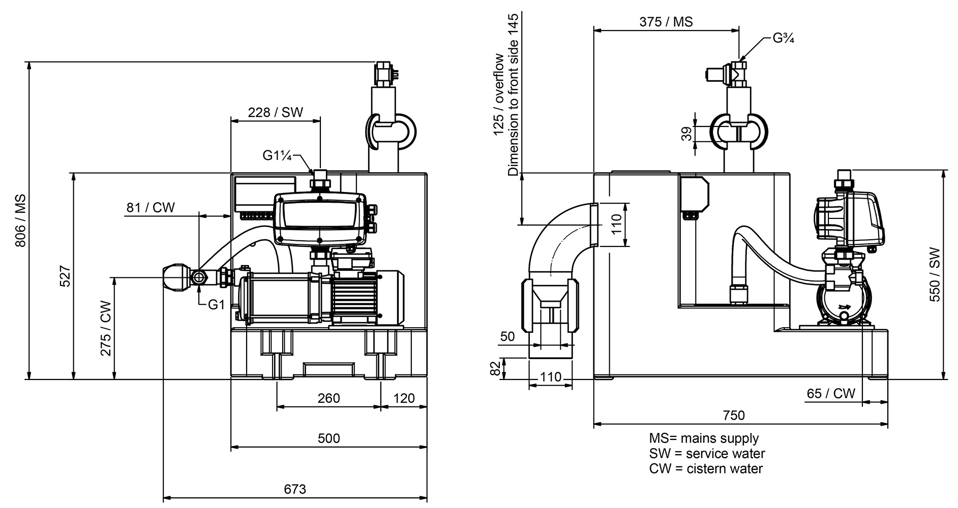
    P-dimensions (WxHxL)
    580 mm x 600 mm x 790 mm
  • Characteristic - RWNA CPS 25-5 B
  • Dimensions - RWNA CPS 25-5 B
  • 20067_en.pdf#20067_fr.pdf#20067_es.pdf#20067_pl.pdf#20067_cz.pdf#20067_de.pdf#20067_pt.pdfData sheet##Ficha técnica#karta danych produktu#Datový list##-----enArray
    (
        [0] => en_GB.utf8
        [1] => en_GB.UTF-8
        [2] => en_GB
        [3] => eng_GB
        [4] => en
        [5] => english
        [6] => english-uk
        [7] => uk
        [8] => gbr
        [9] => britain
        [10] => england
        [11] => greatbritain
        [12] => uk
        [13] => unitedkingdom
        [14] => united-kingdom
    )
    
    1. Data sheet

Zehnder - ready to go

For this reason sanitary wholesalers, pump-specialist shops and installers admire us:

At Zehnder Pumps you will get all pump systems and stations delivered as a complete package including the entire accessories. Quick and easy installed, a Zehnder one works reliable and quite for many years.
What else could you ask for?

Pumps for house and garden

Floodings, cellars filled with water, wells full of useful water, silted garden ponds?

Zehnder products from the area of house and garden such as submersible waste water pumps, deep-well pumps, garden pumps or rainwater utilisation systems can be found in specialist shops. Talk to your installer, home automation wholesaler or pump-specialist trader or contact our sales department at info@zehnder-pumpen.de or call +49 (0)3774/52-100.

Order catalogue

Our printed catalogues, price lists and brochures can be ordered here for free. Thus you can get a better overview about our frequently proved product range.

Please note, all printed forms are also available in the download center.
eurologo
Powered by PIMBase - Concept & Design by Plan-Ad GmbH
Imprint and Privacy Police © Zehnder Pumpen GmbH 2018

We use cookies on our website. Some of them are essential for the operation of the site, while others help us to improve this site and the user experience (tracking cookies). You can decide for yourself whether you want to allow cookies or not. Please note that if you reject them, you may not be able to use all the functionalities of the site.